Úspěch české architektury v Londýně
Liberecká skupina mladých architektů mjölk architekti se v prestižní architektonické soutěži A Room for London, které se zúčastnilo více než pět set ateliérů z celého světa, se svým návrhem probojovala do nejužšího finále, ve kterém se utkala se čtyřmi konkurenčími návrhy.
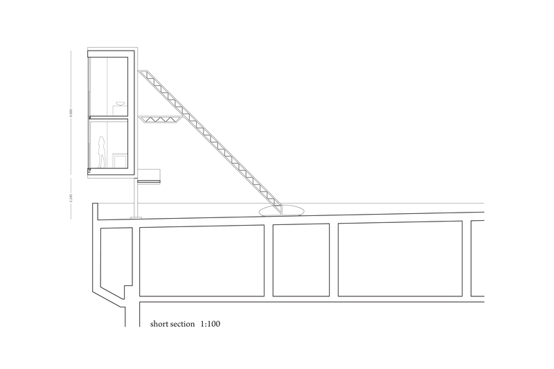
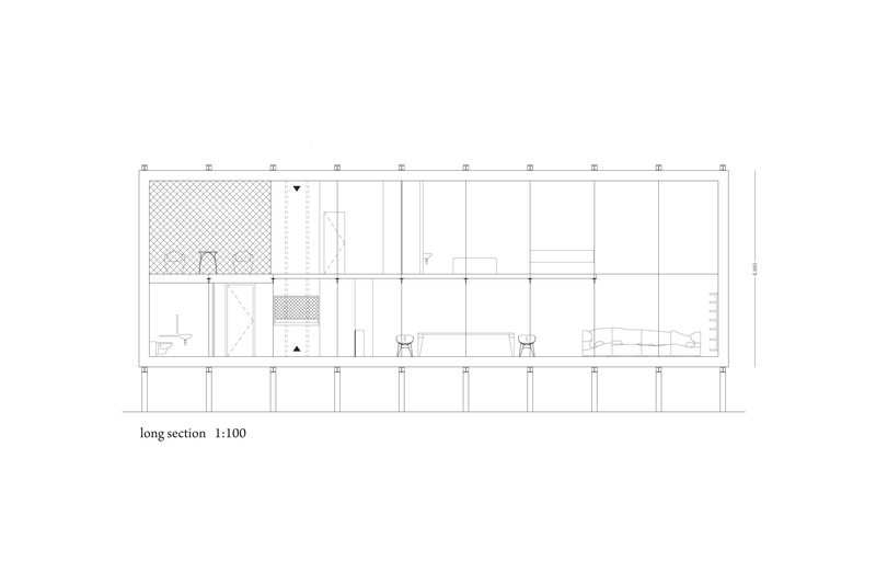
Zadáním architektonické soutěže byl návrh samostatně stojícího apartmánu na střeše budovy koncertní síně Queen Elizabeth Hall v centru Londýna. Apartmán podle vítězného návrhu se začne stavět v průběhu tohoto roku a v roce 2012 bude patřit mezi atrakce XXX. letních olympijských her v Londýně. V apartmánu se budou moci ubytovat dva hosté a strávit tak noc v unikátním architektonickém díle s úchvatným výhledem na centrum Londýna.
Pořadatel soutěže, britská společnost Living Architecture, realizuje a provozuje hotely podle návrhů světově známých architektů, jako jsou Peter Zumthor či MVRDM. Mjölk architekti tak byli jen krůček od možnosti zařadit se do výjimečné společnosti. Jejich návrh ale nakonec realizován nebude, odborná porota jej ocenila peněžitou odměnou a zařadila na 2.-5. místo.













Jagg.cz
Linkuj.cz
Google Bookmarks
Live bookmarks
Digg
Del.icio.us
MySpace
Facebook